貸切見学会開催中
貸切見学会開催中

足利市大沼田町

【期間限定】
K様邸完成見学会開催!

12/5(土)~12/13(日)までの
限定公開!

(9:00~18:00)

広々リビングのある家

Scroll
Scroll

「モデルハウスの⾒学予約を
したいのですが…」
とお気軽にお電話してください。

モデルハウス紹介

Model House

Welcome Modelhouse

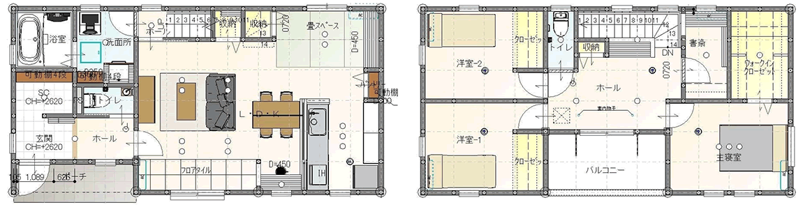
広々リビングのある家

ブラックとブラウンのかっこいい外観。
表情豊かなブルーのアクセントタイルのキッチンに、優しく明るい風合いの広々としたLDKは黒染めの和紙畳の和室スペースと繋がります。
ご夫妻それぞれのワクースペースに、
ベビーカーが置けるシューズクローク。
こだわりがたくさん詰まった暮らしを愉しむお家が完成しました。

  • 広々としたLDK

    センのフローリングを敷いた広々としたLDKは明るい色合いを出し、木の温もりで寛ぎの空間へ。

  • アクセントタイルの
    キッチンスペース

    LDKの中心はブルーのアクセントタイルのキッチンスペース。
    奥様がキッチンに立った時、部屋全体を見渡せる間取りになっています。

  • おしゃれな和室スペース

    キッチン横に黒染めの和紙畳がおしゃれな和室スペース。
    お子様が小さい時はオムツ替えや遊び場、昼寝スペースとして使うことはもちろん、家族みんなでゴロゴロスペースへ。
    造作カウンターを設置した事で、さらに使い勝手が広がります。

  • デスクスペース・書斎スペース

    奥様のホッと一息デスクスペース。お庭を眺めながら、お茶や読書に。
    ご主人様用の書斎スペース。座椅子で座る高さに合わせてカンウンターを低くしました。疲れた時はゴロっと横になることもできます。
    反対側にはお気に入りの洋服が掛けれるようにハンガー掛けが設置されています。

「モデルハウスの⾒学予約を
したいのですが…」
とお気軽にお電話してください。

モデルハウスで
⾒るべきところは?

Check Point

  • 部屋の間取りや
    ⽣活導線の
    使い勝⼿はどう?

  • モデルハウスと
    実際の建物の
    仕上がりの違いは?

  • お隣の家からの
    視線などは
    気にならない?

  • 廊下やキッチンの
    広さは
    窮屈じゃない?

  • 断熱性や耐震性は
    ⼤丈夫?

東建ビルダーではモデルハウスをベースに
たくさんのお客様の家が建てられています。
その一部をご紹介します。

今回⾒られるモデルハウスは
こちら

広々リビングのある家

ブラックとブラウンのかっこいい外観。
表情豊かなブルーのアクセントタイルのキッチンに、
優しく明るい風合いの広々としたLDKは
黒染めの和紙畳の和室スペースと繋がります。
ご夫妻それぞれのワクースペースに、
ベビーカーが置けるシューズクローク。
こだわりがたくさん詰まった
暮らしを愉しむお家が完成しました。

1F⾯積
56.3㎡(17.03坪)
2F⾯積
52.96㎡(16.02坪)
建築面積
59.6㎡(18.03坪)
延床⾯積
109.26㎡(33.05坪)
期間限定 完全予約制の貸切で見学できます。 期間限定 完全予約制の貸切で見学できます。

新型コロナウイルス感染防止対策のため、
モデルハウスの予約制見学を実施

東建ビルダーでは、新型コロナウイルスの感染防止対策のため、モデルハウスの予約制見学を実施しています。
お客様とスタッフの安全確保を目的に、3つの密(密閉・密集・密接)を配慮した上で、見学時間は2時間を上限にさせていただき、時間ごとの見学を1組に限定したご案内をさせていただきます。

ご予約可能時間帯

  • 1

    10:00〜12:00

  • 2

    13:00〜15:00

  • 3

    16:00〜18:00

対象期間 : 2020年5⽉6⽇(⽔)〜 2020年12⽉29⽇(火)
※2020年12⽉29⽇(火)を対象期間の終了と予定しておりますが、今後の政府・県の発表によっては変更させていただく可能性もございます。

安心してご来場頂くための取り組み

  • アルコール除菌

    モデルハウス⼊⼝にはアルコール除菌を⽤意しております。⾒学後に滞在された箇所、机、カウンター、ソファ、おもちゃなどは都度除菌作業を⾏います。

  • 室内換気

    ⾒学中には15分ごとにモデルハウス全窓開放の上で換気作業させていただきます。

  • スタッフのマスク着⽤

    感染予防のため、ご案内時にマスクを着⽤させていただきます。

  • スタッフの検温徹底

    全スタッフの朝・昼の検温を⾏い、37.5℃以上の発熱等、⾵邪の症状がみられる場合は⾃宅待機としております。

「モデルハウスの⾒学予約を
したいのですが…」
とお気軽にお電話してください。

完全予約制です。
飛び込みでのご来場は
対応出来かねますので
事前のご予約をお願いします。

アクセスマップ

Access

足利市大沼田町K様邸完成見学会

〒326-0011 栃木県足利市大沼田町

※一般のお客様のお家となりますので
お問い合わせいただきました方にのみ
詳細なご住所を案内します。

お問い合わせフォーム

予約は簡単フォームで入力1分!
下記フォームに必要事項をご入力ください。

任意第一希望日時
任意第二希望日時
必須お名前
必須お名前(ふりがな)
必須電話番号
必須メールアドレス
任意住所
任意ご意見・ご質問
必須無料メルマガ会員登録をご希望しますか?
(お得な情報をメルマガ会員様にいち早くお届けします。)

【個人情報の取り扱いについて】
本フォームから記入・登録された情報は、資料送付・電子メール送信・電話連絡などの目的で利用・保管します。
個人情報の取り扱いについては、当社プライバシーポリシーをご確認ください。

プライバシーポリシー

株式会社東建ビルダー(以下「当社」)は、以下のとおり個人情報保護方針を定め、個人情報保護の仕組みを構築し、全従業員に個人情報保護の重要性の認識と取組みを徹底させることにより、個人情報の保護を推進致します。

  • 個人情報の管理

    当社は、お客さまの個人情報を正確かつ最新の状態に保ち、個人情報への不正アクセス・紛失・破損・改ざん・漏洩などを防止するため、セキュリティシステムの維持・管理体制の整備・社員教育の徹底等の必要な措置を講じ、安全対策を実施し個人情報の厳重な管理を行ないます。

  • 個人情報の利用目的

    お客さまからお預かりした個人情報は、当社からのご連絡や業務のご案内やご質問に対する回答として、電子メールや資料のご送付に利用いたします。

  • 個人情報の第三者への開示・提供の禁止

    当社は、お客さまよりお預かりした個人情報を適切に管理し、次のいずれかに該当する場合を除き、個人情報を第三者に開示いたしません。

    ・お客さまの同意がある場合
    ・お客さまが希望されるサービスを行なうために当社が業務を委託する業者に対して開示する場合
    ・法令に基づき開示することが必要である場合

  • 個人情報の安全対策

    当社は、個人情報の正確性及び安全性確保のために、セキュリティに万全の対策を講じています。

  • ご本人の照会

    お客さまがご本人の個人情報の照会・修正・削除などをご希望される場合には、ご本人であることを確認の上、対応させていただきます。

  • 法令、規範の遵守と見直し

    当社は、保有する個人情報に関して適用される日本の法令、その他規範を遵守するとともに、本ポリシーの内容を適宜見直し、その改善に努めます。

  • 個人情報に関する問合せ

    当社の個人情報の取扱に関するお問い合せは下記までご連絡ください。

    株式会社東建ビルダー
    〒326-0337 栃木県足利市島田町820
    TEL:0284-72-0645 FAX:0284-72-1499
    E-mail:info@tooken-b.co.jp