イベント・見学会
- 足利店
- 受付中
【野鳥の森】邑楽町鶉(うずら)コンセプト分譲
邑楽町鶉(うずら)コンセプト分譲
【野鳥の森】販売開始!
ALL IN ONE
土地 / 建物 / 外構 / 家具 / カーテン / オール電化
注文住宅を施工する当社が建築したこだわりの平屋のお家を販売します。
土地・建物・外構・家具・カーテン・オール電化がALL in ONE!
東武伊勢崎線 多々良駅まで徒歩10分。
便利でありながら静かな環境です。
スーパーが徒歩圏内、122号線にアクセス良好!
ホームセンターも近くにありますので、日々の買い物に便利です。
ウグイス
| 価格 |
2,480万円 |
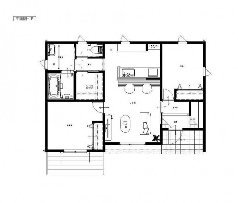
間取り |
2LDK+S(納戸) |
|---|---|---|---|
| 販売戸数 | 1戸 | 総戸数 | 1戸 |
| 土地面積 | 237.93m2(71.97坪)(登記) | 建物面積 | 62.93m2(19.03坪)(登記) |
| 私道負担・道路 | 無、南6m幅、東6m幅 | 完成時期(築年月) | 2025年9月 |
オナガ
| 価格 |
2,640万円 |
間取り |
3LDK+S(納戸) |
|---|---|---|---|
| 販売戸数 | 1戸 | 総戸数 | 1戸 |
| 土地面積 | 253.61m2(76.71坪)(登記) | 建物面積 | 67.9m2(20.53坪)(登記) |
| 私道負担・道路 | 無、南6m幅、東4m幅 | 完成時期(築年月) | 2025年9月 |
ご購入のご相談はお電話または足利ショールームへ
\WEB予約でQUOカードプレゼント!/
WEBからの予約で2000円分!
さらに詳しいアンケートに答えてご予約すると+3,000円分!
合計5,000分をプレゼントします!
スタッフ一同、心よりお待ちしております!
ウグイスの詳細はこちら
https://www.tooken-b.co.jp/model/details_76.html
オナバの詳細はこちら
https://www.tooken-b.co.jp/model/details_77.html








