施工事例
白いガルバのシンプルモダンな家
白いのガルバリウムと屋根付きポーチが印象邸なシンプルモダンの外観
白を基調として木の風合いが優しいナチュラルモダンな内観
みどり市S様邸 ≪延床面積≫29.93坪
ホワイトのサブウェイタイルでカフェのようなキッチンスペース
優しい木の風合いで温かい居心地のよいリビング
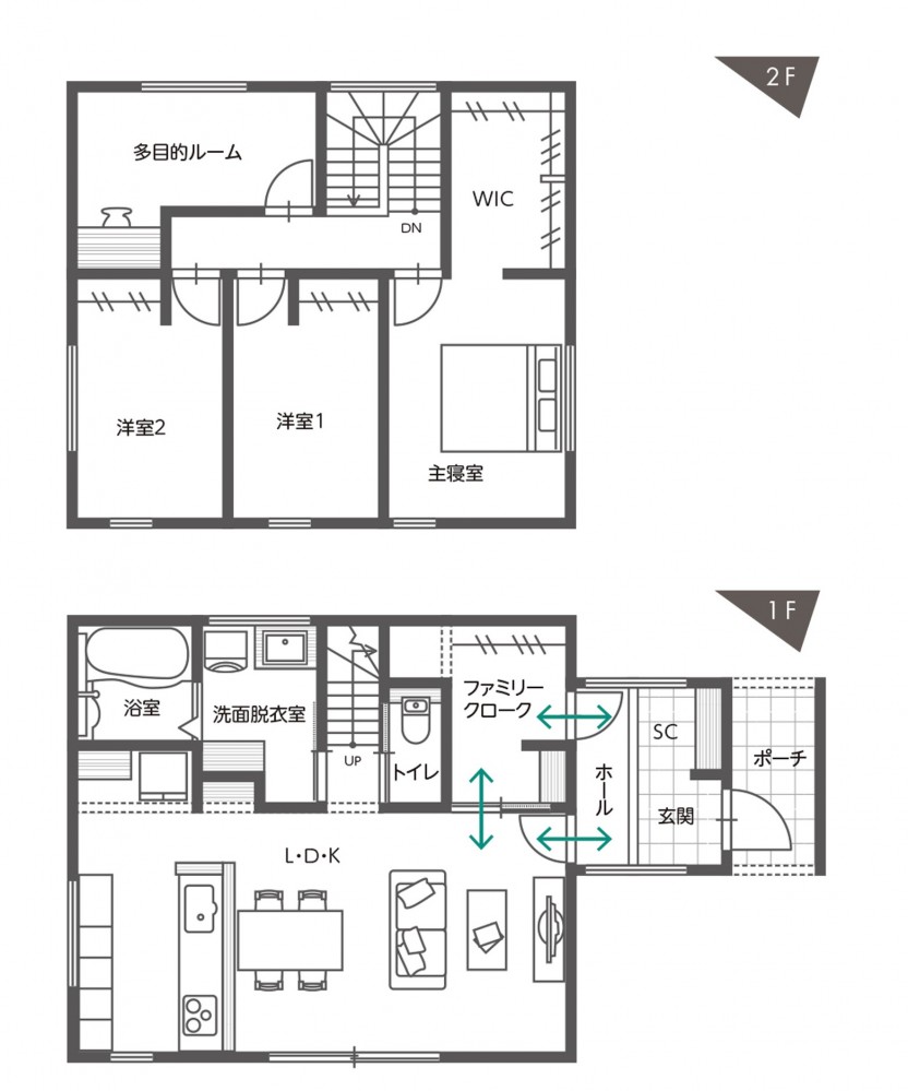
ぐるりと一周できる便利な回遊動線
LDK、ファミリークロークとどちらも行ける広い玄関フロア
ファミリークロークはお出かけ前に身支度できるスペース
洗う干す畳むを全部をこなせる洗面脱衣室
趣味にリモートワークなどに多目的に使える書斎、、、
暮らしを愉しむをデザインしたおしゃれなお家が完成しました。
白を基調として木の風合いが優しいナチュラルモダンな内観
みどり市S様邸 ≪延床面積≫29.93坪
ホワイトのサブウェイタイルでカフェのようなキッチンスペース
優しい木の風合いで温かい居心地のよいリビング
ぐるりと一周できる便利な回遊動線
LDK、ファミリークロークとどちらも行ける広い玄関フロア
ファミリークロークはお出かけ前に身支度できるスペース
洗う干す畳むを全部をこなせる洗面脱衣室
趣味にリモートワークなどに多目的に使える書斎、、、
暮らしを愉しむをデザインしたおしゃれなお家が完成しました。
玄関フロアとリビングに両方へ繋がるファミリークローク。帰宅してすぐにクローゼットにカバンや服を片付けられるだけでなく、お出かけ前に身支度する際にも楽ちん。鏡を見ながらゆっくり身支度できるように造作テーブルを設置しました。







